图标
描述
该插件可创建:
使用方法
插件对话框:

左侧用于选择需要标注的选项卡。
右侧包含所选选项卡的工作设置。
要开始使用插件,请点击 继续 按钮。然后通过框选选择需要标注的元素。

设置窗口包含以下控件:
- 标注轴网 – 启用该选项后,需要选择要绑定尺寸链的轴。
- 标注洞口 – 启用该选项后,会为所处理墙体的洞口创建尺寸。
- 尺寸链偏移 – 定义尺寸链与墙体表面的偏移距离。
- 处理厚度大于以下值的墙体 – 设置处理前的墙体过滤值,可在装饰墙用作墙体时排除装饰层。
为了更灵活地设置,可以排除特定元素:
- 排除类型名称中包含的墙体 – 排除类型名称中包含输入值的墙体。不区分大小写。可用逗号分隔输入多个值。
- 排除结构层材料名称中包含的墙体 – 排除结构层材料名称中包含输入值的墙体。不区分大小写。可用逗号分隔输入多个值。
通过
可以在插件对话框中直接查看输入值的帮助。
仅处理互相垂直且几何中不含弧段的元素。
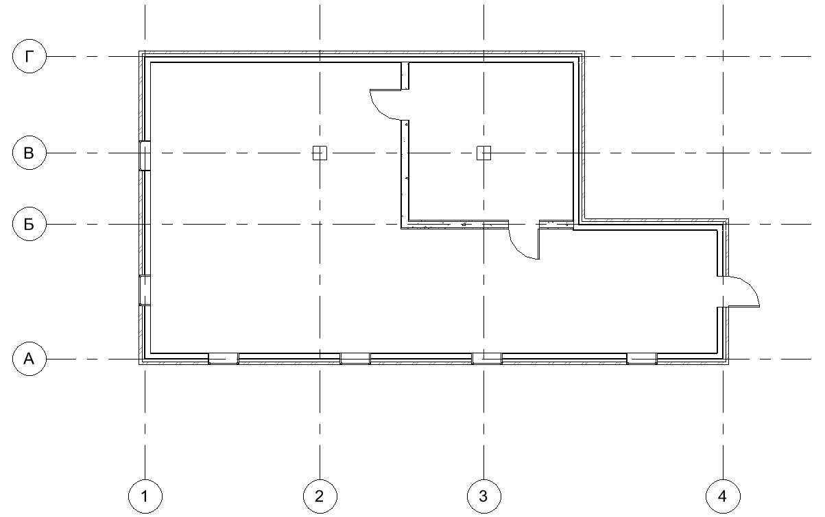
插件标注前:

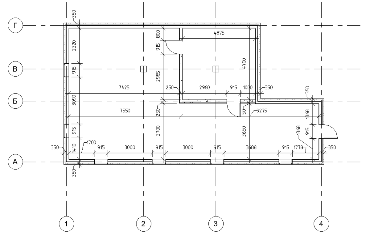
插件标注后:


插件可为直线墙体添加纵向和横向尺寸,不考虑其与其他墙的关系。
设置窗口包含以下控件:
墙体中心横向尺寸 – 启用后会在墙体中心标注横向尺寸
横向尺寸关联最近轴线 – 启用后会在最近的轴处生成额外的尺寸链。如果轴与墙体相交,则只会生成墙与轴之间的尺寸链
墙体纵向尺寸 – 启用后会为墙体标注纵向尺寸
纵向尺寸关联最近轴线 – 启用后会在最近的轴处生成额外的尺寸链。如果轴与墙体相交,则只会生成墙与轴之间的尺寸链。
处理中间边缘(洞口) – 启用后会为所处理墙体的洞口创建尺寸。
尺寸链偏移 – 定义尺寸链与对象边缘的偏移。
水平尺寸位置 – 定义水平尺寸的放置位置(下方/ 上方)。
垂直尺寸位置 – 定义垂直尺寸的放置位置(右侧/左侧)。
启用墙体与轴关联的选项时,需要同时选择墙体和轴,这些轴会在元素选择过滤器中显示。
插件标注前:

插件标注后:


插件可为楼板外边缘和楼板洞口标注尺寸。
设置窗口包含以下控件:
尺寸链偏移 – 定义尺寸链与对象边缘的偏移。
标注外边缘 – 启用后会为楼板外边缘标注尺寸。
外轮廓关联轴线 – 启用后会在最近的轴处生成额外的尺寸链。如果轴与楼板边缘相交,则只会生成边缘与轴之间的尺寸链。
标注洞口 – 启用后会为所处理楼板的洞口创建尺寸。
洞口关联到最近的轴 – 启用后会在最近的轴处生成额外的尺寸链。如果轴与洞口相交,则只会生成洞口与轴之间的尺寸链。
洞口水平尺寸位置 – 定义洞口水平尺寸的放置位置(下方/ 上方)。
洞口垂直尺寸位置 – 定义洞口垂直尺寸的放置位置(右侧/左侧)。
启用与轴关联的选项时,需要同时选择楼板和轴,这些轴会在元素选择过滤器中显示。
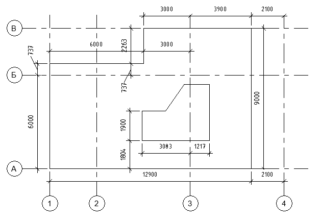
插件标注前:

插件标注后:


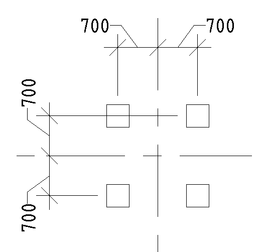
插件可为柱标注总体尺寸。
设置窗口包含以下控件:
关联到最近的轴 – 启用后会将柱关联到轴。此时需要同时选择柱和轴,这些轴会在元素选择过滤器中显示。
与轴线相交时创建总尺寸 – 启用后除了轴关联外,还会创建柱的总体尺寸。
尺寸链偏移 – 定义尺寸链与对象边缘的偏移。
水平尺寸位置 – 定义水平尺寸的放置位置(下方/上方)。
垂直尺寸位置 – 定义垂直尺寸的放置位置(右侧/左侧)。
如果需要将柱关联到轴,则必须同时选择柱和轴。
插件标注前:

插件标注后:


该插件部分可为桩相对于所选轴的位置标注尺寸,即从桩的中心到最近所选轴的尺寸。桩以组的方式处理。桩组指的是相互靠近的桩。
设置窗口包含以下控件:
如果桩的插入点到组内插入点的距离 ≤ … mm,则将桩加入组 – 根据桩之间的位置来定义桩组的逻辑。
尺寸链偏移 – 定义尺寸链与对象边缘的偏移。
水平尺寸位置 – 定义水平尺寸的放置位置(下方、上方)。
垂直尺寸位置 – 定义垂直尺寸的放置位置(右侧/左侧)。
仅处理属于“结构柱”和“结构基础”类别的桩族。
插件标注前:

插件标注后:
