Mit dem Plugin können Sie die Bemaßung von Elementen im Grundriß mit verschiedenen Methoden ausführen
Symbol
Beschreibung
Das Plugin erstellt:
Verwendung
Dialogfenster des Plugins:

Auf der linken Seite erfolgt die Auswahl des Reiters für die Bemaßung.
Die rechte Seite enthält die Einstellungen für den ausgewählten Reiter.
Um mit dem Plugin zu starten, klicken Sie auf die Schaltfläche Weiter. Danach müssen Sie mit einem Rahmen die Elemente auswählen, die bemaßt werden sollen.

Das Einstellungsfenster enthält folgende Steuerelemente:
- Bemaßung von Achsen – wenn diese Option aktiviert ist, müssen Achsen ausgewählt werden, an denen die Bemaßungsketten ausgerichtet werden.
- Bemaßung von Öffnungen – wenn diese Option aktiviert ist, werden Bemaßungen für Öffnungen der bearbeiteten Wand erstellt.
- Abstand der Bemaßungskette – legt den Abstand der Bemaßungskette von der Wandoberfläche fest.
- Die Wände verarbeiten, die dicker sind als … mm – legt einen Wert zur Filterung der Wände vor der Verarbeitung fest. Ermöglicht es, Verkleidungen auszuschließen, wenn diese als Wände modelliert sind.
Für eine flexiblere Konfiguration können bestimmte Elemente ausgeschlossen werden:
- Die Wände von der Bearbeitung ausschließen, deren Typname ... enthält – schließt Wände aus, die im Typnamen den im Feld eingetragenen Wert enthalten. Die Groß-/Kleinschreibung wird nicht berücksichtigt. Mehrere Werte können durch Komma getrennt angegeben werden.
- Die Wände von der Bearbeitung ausschließen, deren Materialname des Layers "Struktur" enthält – schließt Wände aus, die im Materialnamen der Schicht „Struktur“ den im Feld eingetragenen Wert enthalten. Die Groß-/Kleinschreibung wird nicht berücksichtigt. Mehrere Werte können durch Komma getrennt angegeben werden.
Über
können Sie direkt im Dialogfenster des Plugins eine Hilfe zur Eingabe von Werten im Feld aufrufen.
Es werden nur senkrecht zueinander stehende Elemente ohne Bogensegmente in der Geometrie verarbeitet.
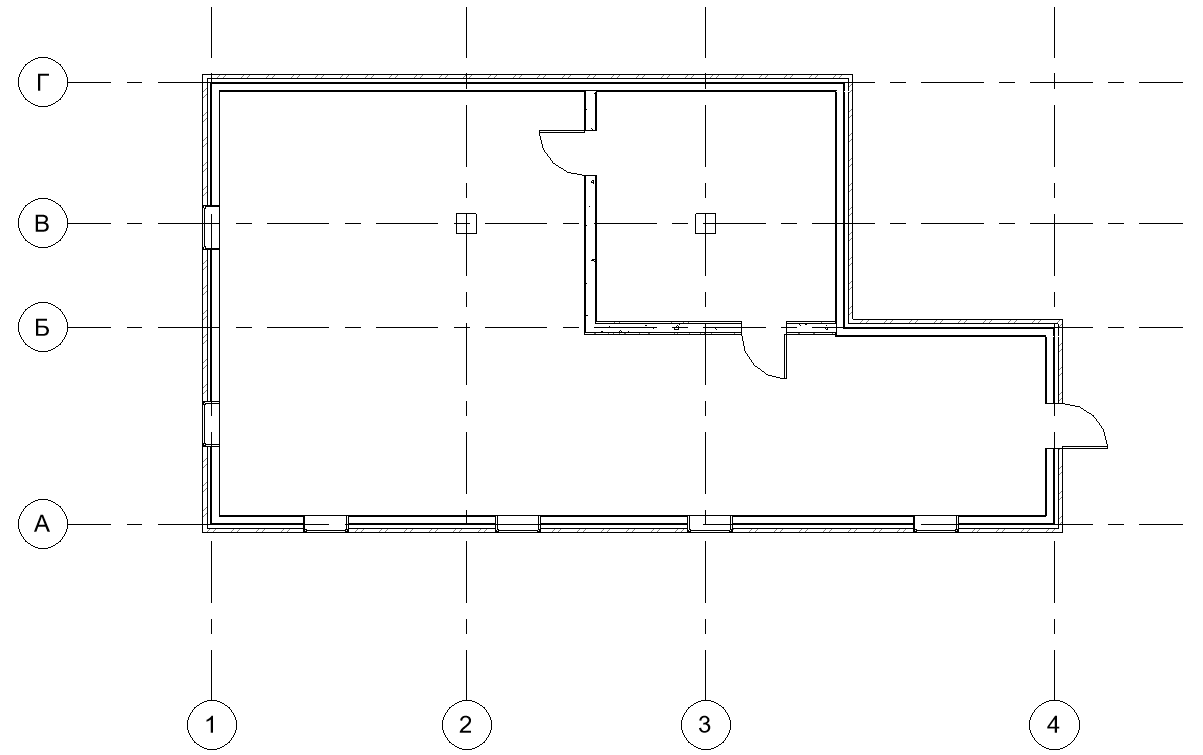
Vor der Bemaßung durch das Plugin:

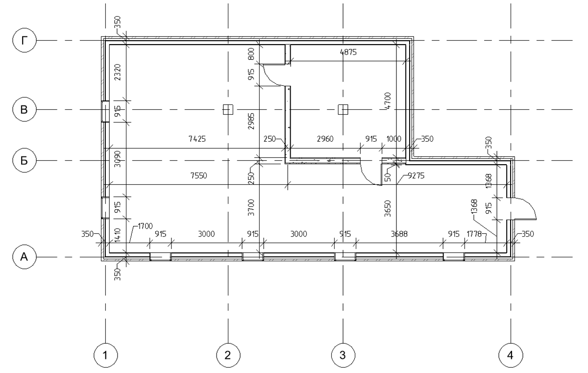
Nach der Bemaßung durch das Plugin:


Das Plugin erstellt Längs- und Quermessungen geradliniger Wände ohne Berücksichtigung ihrer Beziehungen zu anderen Wänden.
Das Einstellungsfenster enthält folgende Steuerelemente:
Quermaß in der Wandmitte – wenn diese Option aktiviert ist, wird eine Quermessung in der Wandmitte erstellt.
Fangen des Quermaßes in der Wandmitte an die nächstgelegene Achse – wenn diese Option aktiviert ist, wird zur nächsten Achse eine zusätzliche Bemaßungskette erstellt. Schneidet die Achse die Wand, werden nur Bemaßungsketten zwischen Wand und Achse erstellt.
Längsmaß der Wand – wenn diese Option aktiviert ist, wird eine Längsmessung der Wand erstellt.
Fangen des Längsmaßes der Wand an die nächstgelegene Achse – wenn diese Option aktiviert ist, wird zur nächsten Achse eine zusätzliche Bemaßungskette erstellt. Schneidet die Achse die Wand, werden nur Bemaßungsketten zwischen Wand und Achse erstellt.
Bearbeitung von Mittelflächen (Öffnungen) – wenn diese Option aktiviert ist, werden Bemaßungen für Öffnungen der bearbeiteten Wand erstellt.
Abstand der Bemaßungskette – legt den Abstand der Bemaßungskette vom Objekt fest.
Position der horizontalen Bemaßungen – legt die Platzierung horizontaler Bemaßungen fest (Unten/Oben).
Position der vertikalen Bemaßungen – legt die Platzierung vertikaler Bemaßungen fest (Rechts/Links).
Bei aktivierten Optionen zur Verknüpfung von Wänden mit Achsen müssen die Wände zusammen mit den Achsen ausgewählt werden, die im Auswahlfilter verfügbar sind.
Vor der Bemaßung durch das Plugin:

Nach der Bemaßung durch das Plugin:


Das Plugin erstellt Bemaßungen an den Außenkanten der Geschossdecke und an den Öffnungen in der Geschossdecke.
Das Einstellungsfenster enthält folgende Steuerelemente:
Abstand der Bemaßungskette – legt den Abstand der Bemaßungskette vom Objekt fest.
Außenkanten bemaßen – wenn diese Option aktiviert ist, werden Bemaßungen an den Außenkanten der Geschossdecke erstellt.
Fangen von äußeren Flächen an Achsen – wenn diese Option aktiviert ist, wird zur nächsten Achse eine zusätzliche Bemaßungskette erstellt. Schneidet die Achse die Kante der Geschossdecke, werden nur Bemaßungsketten zwischen Kante und Achse erstellt.
Bemaßung von Öffnungen – wenn diese Option aktiviert ist, werden Bemaßungen für Öffnungen der bearbeiteten Geschossdecke erstellt.
Fangen der Öffnungen an die nächstgelegenen Achsen – wenn diese Option aktiviert ist, wird zur nächsten Achse eine zusätzliche Bemaßungskette erstellt. Schneidet die Achse die Öffnung, werden nur Bemaßungsketten zwischen Öffnung und Achse erstellt.
Position der horizontalen Bemaßungen für Öffnungen – legt die Platzierung horizontaler Bemaßungen für Öffnungen fest (Unten/Oben).
Position der vertikalen Bemaßungen für Öffnungen – legt die Platzierung vertikaler Bemaßungen für Öffnungen fest (Rechts/Links).
Bei aktivierten Optionen zur Verknüpfung mit Achsen müssen die Geschossdecken zusammen mit den Achsen ausgewählt werden, die im Auswahlfilter verfügbar sind.
Vor der Bemaßung durch das Plugin:

Nach der Bemaßung durch das Plugin:

STÜTZEN

Das Plugin erstellt Gesamtmaße von Stützen.
Das Einstellungsfenster enthält folgende Steuerelemente:
Verknüpfung mit nächsten Achsen – wenn diese Option aktiviert ist, werden Stützen an Achsen verknüpft. Dazu müssen Stützen zusammen mit Achsen ausgewählt werden, die im Auswahlfilter verfügbar sind.
Außenmaß bei Schnittpunkten mit Achsen erstellen – wenn diese Option aktiviert ist, werden neben den Verknüpfungen auch Gesamtmaße der Stützen erstellt.
Abstand der Bemaßungskette – legt den Abstand der Bemaßungskette vom Objekt fest.
Position der horizontalen Bemaßungen – legt die Platzierung horizontaler Bemaßungen fest (Unten/Oben).
Position der vertikalen Bemaßungen – legt die Platzierung vertikaler Bemaßungen fest (Rechts/Links).
Achsen müssen zusammen mit den Stützen ausgewählt werden, wenn diese an Achsen verknüpft werden sollen.
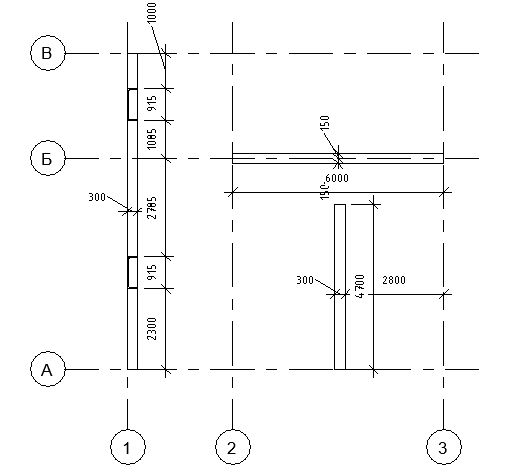
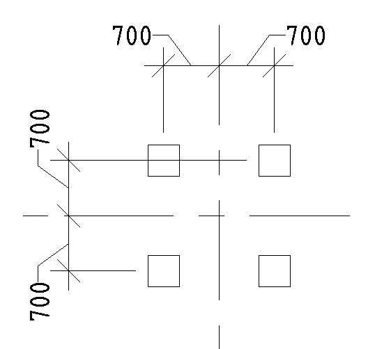
Vor der Bemaßung durch das Plugin:

Nach der Bemaßung durch das Plugin:


Dieser Teil des Plugins erstellt Positionsmaße von Pfählen in Bezug auf ausgewählte Achsen. Das bedeutet, dass Maße von der Mitte eines Pfahls bis zu den nächstgelegenen ausgewählten Achsen gesetzt werden. Die Verarbeitung der Pfähle erfolgt gruppenweise. Eine Pfahlgruppe besteht aus Pfählen, die nahe beieinander liegen.
Das Einstellungsfenster enthält folgende Steuerelemente:
Pfahl zur Gruppe hinzufügen, wenn der Abstand vom Pfahleinfügepunkt zum Einfügepunkt … in einer Gruppe von nicht mehr als … mm – legt die Logik der Bildung von Pfahlgruppen in Abhängigkeit von ihrer Lage zueinander fest.
Abstand der Bemaßungskette – legt den Abstand der Bemaßungskette vom Objekt fest.
Position der horizontalen Bemaßungen – legt die Platzierung horizontaler Bemaßungen fest (Unten, Oben).
Position der vertikalen Bemaßungen – legt die Platzierung vertikaler Bemaßungen fest (Rechts/Links).
Es werden nur Pfahlfamilien verarbeitet, die zu den Kategorien „Tragwerksstützen“ und „Fundamente“ gehören.
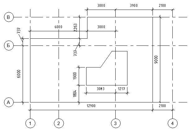
Vor der Bemaßung durch das Plugin:

Nach der Bemaßung durch das Plugin:
