Creación de anotaciones – cotas, cotas de elevación, etiquetas – en secciones
Icono
Uso
El complemento solo puede ejecutarse en vistas del tipo “Sección” y “Alzado”.
El principio del complemento consiste en crear configuraciones
que describen las reglas para generar elementos de anotación para tres grupos: cotas, niveles y etiquetas.

En la parte superior de la ventana hay una lista desplegable con las configuraciones. A la derecha de la lista están disponibles los siguientes botones:
– editar el nombre y agregar una descripción a la configuración actual.
– duplicar la configuración actual.
– exportar la configuración actual. Al hacer clic en el botón se abrirá un cuadro de diálogo donde se debe indicar la ruta para guardar la configuración en formato XML.
– importar una configuración. Al hacer clic en el botón se abrirá un cuadro de diálogo donde se debe seleccionar el archivo XML de la configuración personalizada que se va a cargar.
– eliminar permanentemente la configuración seleccionada.
Debajo se encuentran los grupos con las configuraciones de las reglas de creación de anotaciones (descritas más adelante).
En la parte inferior de la ventana hay dos botones para crear anotaciones:

Procesar todos elementos – se procesarán todos los elementos de la vista actual. Esta opción es adecuada para secciones locales.
Procesar elementos seleccionados – se procesarán solo los elementos seleccionados en la vista actual. Esta opción es útil si se desea procesar una parte de una sección grande. Después de hacer clic en el botón, es necesario elegir el método de selección de elementos: Seleccionar con red selección o Seleccionar por pieza.
El complemento también procesa los elementos preseleccionados. En este caso, aparecerá en la parte inferior de la ventana el botón Procesar elementos preseleccionados.
En los tres casos, solo se procesarán los grupos y subgrupos de reglas de creación de anotaciones marcados con una casilla de verificación.
Mostrar errores de creación de anotaciones – al activar esta opción, todos los errores que ocurran durante la creación de las anotaciones se mostrarán en una ventana de resultados con los identificadores de los elementos no procesados.
Eliminar anotaciones creadas previamente – al activar esta opción se eliminarán las anotaciones creadas anteriormente del mismo grupo que las que se están generando.
Cada uno de los tres grupos de reglas de creación de anotaciones sigue un esquema común: en cada grupo se deben añadir subgrupos de reglas para cada categoría de elementos.

Cada grupo también tiene configuraciones generales que se pueden aplicar a cada subgrupo.
La opción Desplazamiento en todos los grupos y subgrupos define el punto de referencia para construir las anotaciones. Si se selecciona Desde el elemento o Desde todos los elementos, el cálculo se iniciará desde los límites del rectángulo que rodea la geometría del/los elemento(s).
Si en los campos del grupo Tipo y Desplazamiento se selecciona “Establecer según la configuración general”, se aplicarán las configuraciones generales del grupo.
En la esquina superior derecha de cada grupo hay un botón
que permite expandir el grupo de configuración al ancho completo de la ventana.
La configuración general Combinar varios segmentos de cotas añade un posprocesamiento: si las líneas de cota están alineadas, se combinarán en una sola cadena de cotas.

Centrado en geometría del elemento – al activar esta opción, se intentará crear una cota por el centro de la geometría. Se recomienda usarla en casos evidentes, como una cota horizontal para la categoría “Muros” o una cota vertical para “Suelos”.
Acotación a ejes, Acotación a niveles – al activar estas opciones, los ejes o niveles perpendiculares a la línea de cota se usarán al crear la cota.
Para la categoría “Armadura estructural (en sección)” hay opciones adicionales:
- Crear – permite elegir el modo de anotación: Cotas o Anotaciones para varias barras de refuerzo.
- Mostrar fórmula de igualdad – permite combinar cotas con el mismo paso.
Para las categorías “Conductos”, “Bandejas de cables” y “Tuberías” hay opciones adicionales disponibles:
- Eje – al activar esta opción, se crearán las cotas de eje de los elementos en sección y en vista.
- Generales – al activar esta opción, se crearán las cotas generales de los elementos en vista.
Por ejemplo, se necesita colocar una cota horizontal hacia abajo con desplazamiento desde el elemento y alineada al eje para un muro, y una cota vertical hacia la izquierda con desplazamiento desde los límites del recorte de vista para una ventana.
Configuramos los siguientes parámetros en el grupo Cotas del complemento:

Hacemos clic en Procesar todos elementos y obtenemos:


Tipo alternativo – se aplica cuando la distancia en la vista (considerando la escala) entre dos cotas de elevación es menor que el valor indicado en el campo Si es menor.
Para la categoría “Suelos” hay opciones adicionales:
- Diferentes tipos para cara superior e inferior – al activar esta opción, se aplicarán el Tipo y el Tipo alternativo respectivamente para las caras superior e inferior.
- Colocar cotas de elevación: – selección del método de colocación de cotas de elevación: en caras superior e inferior, solo en cara superior, solo en cara inferior.
Para las categorías “Conductos”, “Bandejas de cables” y “Tuberías” hay opciones adicionales disponibles:
- Eje – al activar esta opción, se crearán las cotas de elevación de eje de los elementos en sección y en vista.
- Generales – al activar esta opción, se crearán las cotas generales de elevación de los elementos en vista.
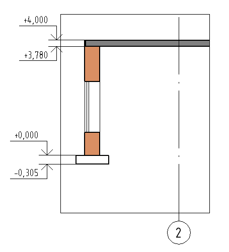
Por ejemplo, se necesita colocar cotas de elevación para el forjado y la cimentación. Los seleccionamos en la vista y ejecutamos el complemento. En el grupo Cotas de elevación establecemos los siguientes parámetros:

Hacemos clic en Procesar elementos preseleccionados y obtenemos:

Para las etiquetas, el tipo de familia debe especificarse para cada categoría de elementos procesados.

El extremo de la directriz de la etiqueta se coloca en el centro de la geometría del elemento procesado o en el punto más cercano al centro de la geometría.
Para la categoría “Armadura estructural” hay un posprocesamiento adicional: si las etiquetas se alinean en una sola línea y etiquetan armaduras con el mismo tipo y valor, solo se mantendrá una de ellas.
Por ejemplo, se necesita colocar una etiqueta de ventana con el extremo libre a la izquierda y con desplazamiento desde el elemento. En el grupo Etiquetas establecemos los siguientes parámetros:

Hacemos clic en Procesar elementos seleccionados, luego en Seleccionar por pieza , seleccionamos la ventana deseada en la vista, hacemos clic en “Finalizar” en la cinta de Revit y obtenemos:
